Top.Mail.Ru
krsk@dia-m.ru 8 (800) 234-05-08
+7 (923) 303-01-52
Ваш регион Москва?

Шкафы вытяжные Выбраны параметры: Ламинарные системы

Каталоги, статьи, видео
сбросить фильтрыВыбрано: Ламинарные системы
Фильтр
Все производители
Все категории
Ширина рабочей поверхности, см
Напишите значения в полях
От
До
(7)
Особенности
Фильтр
сбросить фильтрыВыбрано: Ламинарные системы
Доступность
  • На складе
  • В транзите и на складе
  • Все товары
1R-E.001-10.0
РУ
Регистрационное удостоверение на медицинское изделие Росздравнадзора
190 000 руб.
190 000 руб. RUB
Шкафы вытяжные общего назначения

Шкафы обеспечивают защиту оператора при работе с химически вредными и малотоксичными веществами с эффективным удалением их из рабочей зоны вытяжного шкафа. Предназначены для использования в составе с внешней вытяжной системой.

Вытяжной шкаф не предназначен для работы с опасными и потенциально опасными патогенными агентами и микроорганизмами.

Общее описание:

  • Корпус — цельнометаллический, окрашенный;
  • столешница — нержавеющая сталь (AISI 304);
  • наклонный защитный экран;
  • лицевое стекло — распашное, материал — закаленное стекло;
  • механизм открывания, закрывания и удерживания стекла в открытом положении с газовым амортизатором;
  • лампа освещения с защитным экраном расположена в рабочей камере;
  • встроенный блок евророзеток для подключения лабораторных приборов;
  • встроенный вытяжной вентилятор;
  • обратный клапан, исключающий возможность обратного тока воздуха;
  • фланец для подсоединения к внешней вытяжной системе, d = 250 мм;
  • регуляторы уровня высоты на основании подставки для установки горизонтального уровня рабочей поверхности;
  • возможно изготовление рабочей поверхности шкафа вытяжного из закаленного стекла, а также изготовление вытяжного шкафа с мойкой.

Регистрационное удостоверение Росздравнадзора № РЗН 2015/3553 от 25.01.2016 г.


ШВ-«Ламинар-С»-1,0

  • Металлические боковые панели;
  • выдвижной ящик для инструментов под столешницей, с крышкой рабочего проема;
  • гофрированный металлорукав Ø 250 мм, длина 2,5 метра;
  • 2 быстросъемных хомута для крепления гофрированного металлорукава;
  • клавишные выключатели с подсветкой для включения питания шкафа / освещения / вентилятора;
  • рамочная подставка с полкой для ног;
  • винтовые опоры для стационарной установки шкафа;
  • габариты, Ш × Г × В, мм ― 1020 × 621 × 1920;
  • рабочая зона, Ш × Г × В, мм ― 1015 × 535 × 655;
  • масса шкафа с подставкой, кг ― 84;
  • мощность вентилятора, Вт ― 27;
  • мощность потребления (без учета нагрузки на розетки), Вт ― 60;
  • максимальная нагрузка на встроенные блоки розеток, Вт ― 1000;
  • максимальная мощность потребления, Вт ― 1060.

Дополнительные опции:

  • кран–газ без электромагнитного клапана;
  • кран-вакуум без электромагнитного клапана;
  • дополнительный блок розеток;
  • мойка из нержавеющей стали в комплекте со сливным устройством и смесителем;
  • смеситель для подачи воды (гор./хол.);
  • кран для подачи воды;
  • подставка-тумба с вытяжкой (в составе бокса)/(в отдельной таре);
  • столешница «Polystone»-1,0.


1R-E.002-10.0
РУ
Регистрационное удостоверение на медицинское изделие Росздравнадзора
235 000 руб.
235 000 руб. RUB
Шкафы вытяжные общего назначения

Шкафы обеспечивают защиту оператора при работе с химически вредными и малотоксичными веществами с эффективным удалением их из рабочей зоны вытяжного шкафа. Предназначены для использования в составе с внешней вытяжной системой.

Вытяжной шкаф не предназначен для работы с опасными и потенциально опасными патогенными агентами и микроорганизмами.

Общее описание:

  • Корпус — цельнометаллический, окрашенный;
  • столешница — нержавеющая сталь (AISI 304);
  • наклонный защитный экран;
  • лицевое стекло — распашное, материал — закаленное стекло;
  • механизм открывания, закрывания и удерживания стекла в открытом положении с газовым амортизатором;
  • лампа освещения с защитным экраном расположена в рабочей камере;
  • встроенный блок евророзеток для подключения лабораторных приборов;
  • встроенный вытяжной вентилятор;
  • обратный клапан, исключающий возможность обратного тока воздуха;
  • фланец для подсоединения к внешней вытяжной системе, d = 250 мм;
  • регуляторы уровня высоты на основании подставки для установки горизонтального уровня рабочей поверхности;
  • возможно изготовление рабочей поверхности шкафа вытяжного из закаленного стекла, а также изготовление вытяжного шкафа с мойкой.

Регистрационное удостоверение Росздравнадзора № РЗН 2015/3553 от 25.01.2016 г.


ШВ-«Ламинар-С»-1,0 с УФО

  • Металлические боковые панели;
  • гофрированный металлорукав Ø 250 мм, длина 2,5 метра;
  • 2 быстросъемных хомута для крепления гофрированного металлорукава;
  • клавишные выключатели с подсветкой для включения питания шкафа / освещения / вентилятора;
  • пульт управления УФ-облучением с антивандальными кнопками и таймером с дисплеем;
  • рамочная подставка с полкой для ног;
  • винтовые опоры для стационарной установки шкафа;
  • габариты, Ш × Г × В, мм ― 1020 × 621 × 1920;
  • рабочая зона, Ш × Г × В, мм ― 1015 × 525 × 655;
  • масса шкафа с подставкой, кг ― 84;
  • мощность вентилятора, Вт ― 31;
  • мощность потребления (без учета нагрузки на розетки), Вт ― 90;
  • максимальная нагрузка на встроенные блоки розеток, Вт ― 1000;
  • максимальная мощность потребления, Вт ― 1090;
  • блок УФ-облучения:
    • выдвижной, под столешницей;
    • металлическая защита лампы УФ-облучения.

Дополнительные опции:

  • кран–газ без электромагнитного клапана;
  • кран-вакуум без электромагнитного клапана;
  • дополнительный блок розеток;
  • мойка из нержавеющей стали в комплекте со сливным устройством и смесителем;
  • смеситель для подачи воды (гор./хол.);
  • кран для подачи воды;
  • подставка-тумба с вытяжкой;
  • столешница «Polystone»-1,0.


1R-E.002-13.0
РУ
Регистрационное удостоверение на медицинское изделие Росздравнадзора
265 000 руб.
265 000 руб. RUB
Шкафы вытяжные общего назначения

Шкафы обеспечивают защиту оператора при работе с химически вредными и малотоксичными веществами с эффективным удалением их из рабочей зоны вытяжного шкафа. Предназначены для использования в составе с внешней вытяжной системой.

Вытяжной шкаф не предназначен для работы с опасными и потенциально опасными патогенными агентами и микроорганизмами.

Общее описание:

  • Корпус — цельнометаллический, окрашенный;
  • столешница — нержавеющая сталь (AISI 304);
  • наклонный защитный экран;
  • лицевое стекло — распашное, материал — закаленное стекло;
  • механизм открывания, закрывания и удерживания стекла в открытом положении с газовым амортизатором;
  • лампа освещения с защитным экраном расположена в рабочей камере;
  • встроенный блок евророзеток для подключения лабораторных приборов;
  • встроенный вытяжной вентилятор;
  • обратный клапан, исключающий возможность обратного тока воздуха;
  • фланец для подсоединения к внешней вытяжной системе, d = 250 мм;
  • регуляторы уровня высоты на основании подставки для установки горизонтального уровня рабочей поверхности;
  • возможно изготовление рабочей поверхности шкафа вытяжного из закаленного стекла, а также изготовление вытяжного шкафа с мойкой.

Регистрационное удостоверение Росздравнадзора № РЗН 2015/3553 от 25.01.2016 г.


ШВ-«Ламинар-С»-1,3 с УФО

  • Металлические боковые панели;
  • гофрированный металлорукав Ø 250 мм, длина 2,5 метра;
  • 2 быстросъемных хомута для крепления гофрированного металлорукава;
  • клавишные выключатели с подсветкой для включения питания шкафа / освещения / вентилятора;
  • пульт управления УФ-облучением с антивандальными кнопками и таймером с дисплеем;
  • рамочная подставка с полкой для ног;
  • винтовые опоры для стационарной установки шкафа;
  • габариты, Ш × Г × В, мм ― 1315 × 621 × 1920;
  • рабочая зона, Ш × Г × В, мм ― 1310 × 535 × 655;
  • масса шкафа с подставкой, кг ― 98;
  • мощность вентилятора, Вт ― 31;
  • мощность потребления (без учета нагрузки на розетки), Вт ― 100;
  • максимальная нагрузка на встроенные блоки розеток, Вт ― 1000;
  • максимальная мощность потребления, Вт ― 1100;
  • блок УФ-облучения:
    • выдвижной, под столешницей;
    • металлическая защита лампы УФ-облучения.

Дополнительные опции:

  • кран–газ без электромагнитного клапана;
  • кран-вакуум без электромагнитного клапана;
  • дополнительный блок розеток;
  • мойка из нержавеющей стали в комплекте со сливным устройством и смесителем;
  • смеситель для подачи воды (гор./хол.);
  • кран для подачи воды;
  • подставка-тумба с вытяжкой (в составе бокса)/(в отдельной таре);
  • подставка-тумба без вытяжки (в составе бокса)/(в отдельной таре);
  • столешница «Polystone»-1,3.


1R-E.001-15.0
РУ
Регистрационное удостоверение на медицинское изделие Росздравнадзора
290 000 руб.
290 000 руб. RUB
Шкафы вытяжные общего назначения

Шкафы обеспечивают защиту оператора при работе с химически вредными и малотоксичными веществами с эффективным удалением их из рабочей зоны вытяжного шкафа. Предназначены для использования в составе с внешней вытяжной системой.

Вытяжной шкаф не предназначен для работы с опасными и потенциально опасными патогенными агентами и микроорганизмами.

Общее описание:

  • Корпус — цельнометаллический, окрашенный;
  • столешница — нержавеющая сталь (AISI 304);
  • наклонный защитный экран;
  • лицевое стекло — распашное, материал — закаленное стекло;
  • механизм открывания, закрывания и удерживания стекла в открытом положении с газовым амортизатором;
  • лампа освещения с защитным экраном расположена в рабочей камере;
  • встроенный блок евророзеток для подключения лабораторных приборов;
  • встроенный вытяжной вентилятор;
  • обратный клапан, исключающий возможность обратного тока воздуха;
  • фланец для подсоединения к внешней вытяжной системе, d = 250 мм;
  • регуляторы уровня высоты на основании подставки для установки горизонтального уровня рабочей поверхности;
  • возможно изготовление рабочей поверхности шкафа вытяжного из закаленного стекла, а также изготовление вытяжного шкафа с мойкой.

Регистрационное удостоверение Росздравнадзора № РЗН 2015/3553 от 25.01.2016 г.


ШВ-«Ламинар-С»-1,5

  • Закаленные боковые стекла;
  • светодиодное освещение рабочей камеры;
  • гофрированный металлорукав Ø 250 мм, длина 2,5 метра;
  • 2 быстросъемных хомута для крепления гофрированного металлорукава;
  • клавишные выключатели с подсветкой для включения питания шкафа / освещения / вентилятора;
  • рамочная подставка с полкой для ног;
  • винтовые опоры для стационарной установки шкафа;
  • транспортировочные колеса для перемещения шкафа;
  • габариты, Ш × Г × В, мм ― 1500 × 770 × 1880;
  • рабочая зона, Ш × Г × В, мм ― 1430 × 620 × 665;
  • масса шкафа с подставкой, кг ― 126;
  • мощность вентилятора, Вт ― 27;
  • мощность потребления (без учета нагрузки на розетки), Вт ― 75;
  • максимальная нагрузка на встроенные блоки розеток, Вт ― 1000.

Дополнительные опции:

  • кран для технических газов без электромагнитного клапана;
  • кран для горючего газа без электромагнитного клапана;
  • кран-вакуум без электромагнитного клапана;
  • дополнительный блок розеток;
  • мойка из нержавеющей стали в комплекте со сливным устройством и смесителем;
  • смеситель для подачи воды (гор./хол.);
  • кран для подачи воды;
  • подставка-тумба без вытяжки;
  • столешница «Polystone»-1,5;
  • столешница DURCON.


1R-E.002-15.0
РУ
Регистрационное удостоверение на медицинское изделие Росздравнадзора
310 000 руб.
310 000 руб. RUB
Шкафы вытяжные общего назначения

Шкафы обеспечивают защиту оператора при работе с химически вредными и малотоксичными веществами с эффективным удалением их из рабочей зоны вытяжного шкафа. Предназначены для использования в составе с внешней вытяжной системой.

Вытяжной шкаф не предназначен для работы с опасными и потенциально опасными патогенными агентами и микроорганизмами.

Общее описание:

  • Корпус — цельнометаллический, окрашенный;
  • столешница — нержавеющая сталь (AISI 304);
  • наклонный защитный экран;
  • лицевое стекло — распашное, материал — закаленное стекло;
  • механизм открывания, закрывания и удерживания стекла в открытом положении с газовым амортизатором;
  • лампа освещения с защитным экраном расположена в рабочей камере;
  • встроенный блок евророзеток для подключения лабораторных приборов;
  • встроенный вытяжной вентилятор;
  • обратный клапан, исключающий возможность обратного тока воздуха;
  • фланец для подсоединения к внешней вытяжной системе, d = 250 мм;
  • регуляторы уровня высоты на основании подставки для установки горизонтального уровня рабочей поверхности;
  • возможно изготовление рабочей поверхности шкафа вытяжного из закаленного стекла, а также изготовление вытяжного шкафа с мойкой.

Регистрационное удостоверение Росздравнадзора № РЗН 2015/3553 от 25.01.2016 г.


ШВ-«Ламинар-С»-1,5 с УФО

  • Металлические боковые панели;
  • светодиодное освещение рабочей камеры;
  • гофрированный металлорукав Ø 250 мм, длина 2,5 метра;
  • 2 быстросъемных хомута для крепления гофрированного металлорукава;
  • клавишные выключатели с подсветкой для включения питания шкафа / освещения / вентилятора;
  • пульт управления УФ-облучением с антивандальными кнопками и таймером с дисплеем;
  • рамочная подставка с полкой для ног;
  • винтовые опоры для стационарной установки шкафа;
  • транспортировочные колеса для перемещения шкафа;
  • габариты, Ш × Г × В, мм ― 1500 × 770 × 1880;
  • рабочая зона, Ш × Г × В, мм ― 1430 × 620 × 680;
  • масса шкафа с подставкой, кг ― 126;
  • мощность вентилятора, Вт ― 21;
  • мощность потребления (без учета нагрузки на розетки), Вт ― 85;
  • максимальная нагрузка на встроенные блоки розеток, Вт ― 1000;
  • блок УФ-облучения ― в верхней части задней стенки рабочей камеры.

Дополнительные опции:

  • кран для технических газов без электромагнитного клапана;
  • кран для горючего газа без электромагнитного клапана;
  • кран-вакуум без электромагнитного клапана;
  • дополнительный блок розеток;
  • мойка из нержавеющей стали в комплекте со сливным устройством и смесителем;
  • смеситель для подачи воды (гор./хол.);
  • кран для подачи воды;
  • подставка-тумба без вытяжки;
  • подставка рамочная увеличенной высоты;
  • столешница «Polystone»-1,5;
  • столешница «DURCON».
1R-E.003-16.0
РУ
Регистрационное удостоверение на медицинское изделие Росздравнадзора
792 000 руб.
792 000 руб. RUB
Шкафы вытяжные общего назначения, химические

Шкафы данной модификации применяются для проведения химико-аналитических исследований материалов, связанных с возникновением и распространением токсичных паров и газов, вредных для здоровья человека. Используются в составе с внешней вытяжной системой в лабораториях различного профиля.

Шкафы не предназначены для работы с опасными и потенциально опасными патогенными агентами и микроорганизмами.

Общее описание:

  • Корпус — цельнометаллический, окрашенный;
  • столешница — искусственный камень PolyStone;
  • лицевое стекло — подъемное, материал — закаленное стекло, бронированное пленкой;
  • подъем/опускание лицевого стекла с помощью электропривода;
  • боковые панели — закаленное стекло;
  • задняя стенка — нержавеющая сталь AISI 304;
  • лампа освещения с защитным экраном расположена в рабочей камере;
  • освещение — светодиодное;
  • вытяжной воздуховод из нержавеющей стали;
  • забор воздуха с трех уровней (верхнего, среднего и нижнего) через решетки на задней стенке шкафа;
  • все элементы управления — на передней панели для предотвращения контакта оператора с вредной средой;
  • встроенный блок евророзеток для подключения лабораторных приборов;
  • обратный клапан, исключающий возможность обратного тока воздуха;
  • фланец для подсоединения к внешней вытяжной системе, d = 250 мм;
  • кнопочный выключатель питания шкафа с индикатором включения;
  • автоматические выключатели для автономных розеток с индикаторами включения;
  • поворотный выключатель для подъем/опускания лицевого стекла;
  • рамочная подставка с полкой для ног;
  • винтовые опоры для стационарной установки шкафа.

Регистрационное удостоверение Росздравнадзора № РЗН 2015/3553 от 25.01.2016 г.


ШВ-«Ламинар-С»-1,6 All-химик

  • Габариты (с поднятым стеклом), Ш × Г × В, мм ― 1605 × 810 × 2545;
  • рабочая зона, Ш × Г × В, мм ― 1510 × 720 × 820;
  • масса шкафа с подставкой, кг ― 370;
  • мощность потребления (без учета нагрузки на розетки), Вт ― 300;
  • суммарная максимальная нагрузка на встроенные блоки розеток, Вт ― 2500.

Дополнительные опции:

  • панель боковая с двухуровневыми сдвижными стеклами;
  • мойка-слив DURCON;
  • накладная встраиваемая мойка DURCON;
  • накладная встраиваемая мойка FRIDURIT;
  • кран (патрубок-гусак) латунный с дистанционным управлением;
  • кран с дистанционным управлением для деионизованной воды;
  • кран (патрубок-гусак) из нержавеющей стали с дистанционным управлением;
  • полка съемная;
  • полка на боковой рамке;
  • забор воздуха с трех уровней регулируемый;
  • вытяжной вентилятор химически стойкий трехфазный;
  • вытяжной вентилятор химически стойкий однофазный;
  • УФ-облучение рабочей камеры стационарное;
  • тумба выкатная с распашной дверкой;
  • тумба выкатная (с ящиками/с лотком/с полками);
  • столешница DURCON шириной 1,6 м;
  • столешница FRIDURIT шириной 1,6 м.
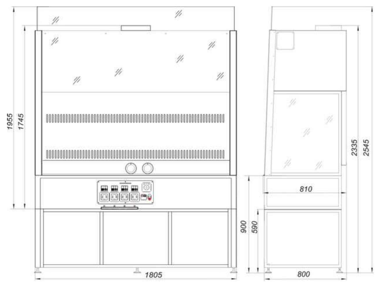
1R-E.003-18.0
РУ
Регистрационное удостоверение на медицинское изделие Росздравнадзора
870 000 руб.
870 000 руб. RUB
Шкафы вытяжные общего назначения, химические

Шкафы данной модификации применяются для проведения химико-аналитических исследований материалов, связанных с возникновением и распространением токсичных паров и газов, вредных для здоровья человека. Используются в составе с внешней вытяжной системой в лабораториях различного профиля.

Шкафы не предназначены для работы с опасными и потенциально опасными патогенными агентами и микроорганизмами.

Общее описание:

  • Корпус — цельнометаллический, окрашенный;
  • столешница — искусственный камень PolyStone;
  • лицевое стекло — подъемное, материал — закаленное стекло, бронированное пленкой;
  • подъем/опускание лицевого стекла с помощью электропривода;
  • боковые панели — закаленное стекло;
  • задняя стенка — нержавеющая сталь AISI 304;
  • лампа освещения с защитным экраном расположена в рабочей камере;
  • освещение — светодиодное;
  • вытяжной воздуховод из нержавеющей стали;
  • забор воздуха с трех уровней (верхнего, среднего и нижнего) через решетки на задней стенке шкафа;
  • все элементы управления — на передней панели для предотвращения контакта оператора с вредной средой;
  • встроенный блок евророзеток для подключения лабораторных приборов;
  • обратный клапан, исключающий возможность обратного тока воздуха;
  • фланец для подсоединения к внешней вытяжной системе, d = 250 мм;
  • кнопочный выключатель питания шкафа с индикатором включения;
  • автоматические выключатели для автономных розеток с индикаторами включения;
  • поворотный выключатель для подъем/опускания лицевого стекла;
  • рамочная подставка с полкой для ног;
  • винтовые опоры для стационарной установки шкафа.

Регистрационное удостоверение Росздравнадзора № РЗН 2015/3553 от 25.01.2016 г.


ШВ-«Ламинар-С»-1,8 All-химик

  • Габариты (с поднятым стеклом), Ш × Г × В, мм ― 1805 × 810 × 2545;
  • рабочая зона, Ш × Г × В, мм ― 1710 × 720 × 820;
  • масса шкафа с подставкой, кг ― 390;
  • мощность потребления (без учета нагрузки на розетки), Вт ― 330;
  • суммарная максимальная нагрузка на встроенные блоки розеток, Вт ― 2500.

Дополнительные опции:

  • панель боковая с двухуровневыми сдвижными стеклами;
  • мойка-слив DURCON;
  • накладная встраиваемая мойка DURCON;
  • накладная встраиваемая мойка FRIDURIT;
  • кран (патрубок-гусак) латунный с дистанционным управлением;
  • кран с дистанционным управлением для деионизованной воды;
  • кран (патрубок-гусак) из нержавеющей стали с дистанционным управлением;
  • полка съемная;
  • полка на боковой рамке;
  • забор воздуха с трех уровней регулируемый;
  • вытяжной вентилятор химически стойкий трехфазный;
  • вытяжной вентилятор химически стойкий однофазный;
  • УФ-облучение рабочей камеры стационарное;
  • тумба выкатная с распашной дверкой;
  • тумба выкатная (с ящиками/с лотком/с полками);
  • столешница DURCON шириной 1,8 м;
  • столешница FRIDURIT шириной 1,8 м.
Ваш заказ будет обработан
в ближайшее время.
Мы пришлем уведомление, как только все будет готово. Спасибо!